The Collection
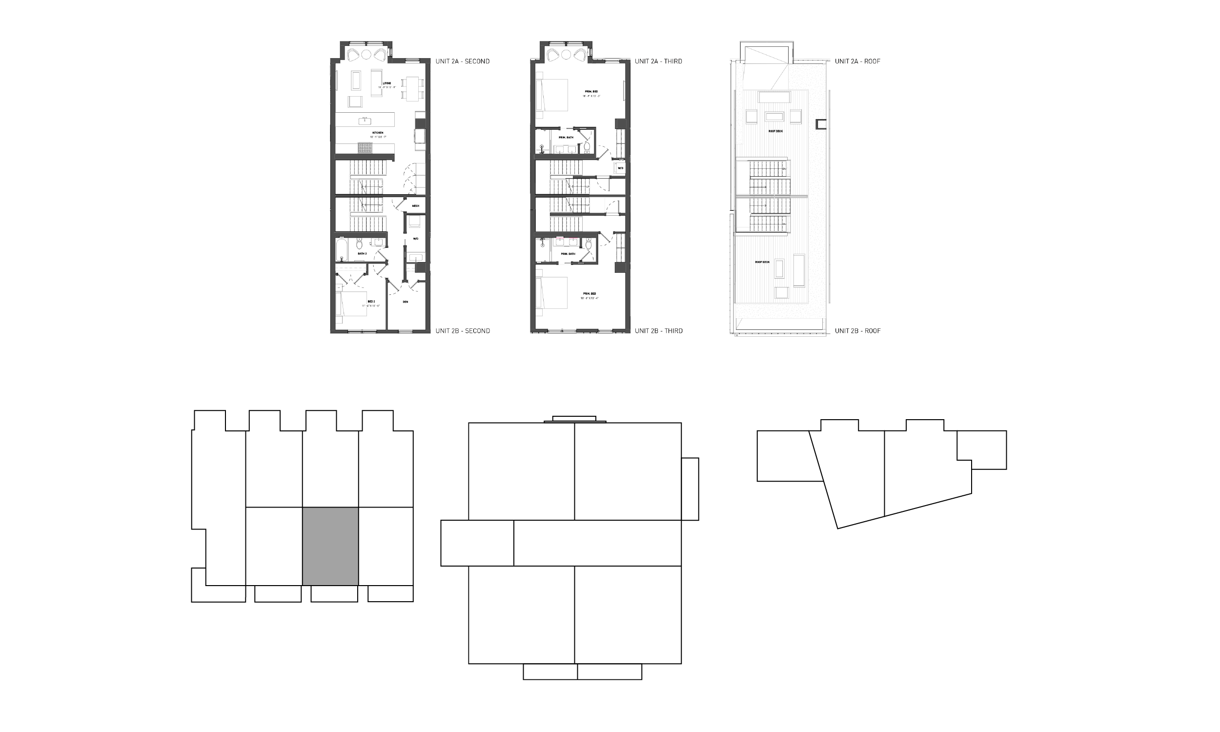
Floorplans
Neighborhood
The Team
History
Contact
The Collection
Floorplans
Neighborhood
The Team
History
Contact
Layout